Fitting Software - Providing Quality and Value Service - Design - Optimise - Manufacture - Manufacturing Software Solutions
Contact Us:  0411 969 437  
Home News Products Industries Resource Centre Testimonials Contact Us FittingSoftware
Polyboard is a unique & powerful tool for designing and manufacturing built in furniture. In the kitchen industry Polyboard really excels allowing you quick and easy custom kitchen design. Unlike other software packages that are based on predefined cabinet libraries, Polyboard gives you the full control over the manufacturing and construction of your cabinets Polyboard does it all: Compete cut-lists for all materials. If you’re using a cnc you have full control of part shaping, boring cut-outs and other machining - all in 3D with 100% accurate costings for each component right down to the last screw!
Polyboard lets you decide how you want to build your cabinets. While many kitchen design programs come with predefined libraries and a set of options to modify them. Polyboard has a different approach. It simply allows you to create virtually any cabinet that can be made out of flat panels quickly and easily. You can define predefined cabinet styles and manufacturing methods that will allow you to create cabinets from scratch very quickly, or build one cabinet, duplicate it, make changes and watch you’re own personalised kitchen cabinet library grow in next to no time!

Special Cabinets:

Special cabinets are easy in Polyboard in fact this will be the main reason you  will be grateful that you chose Polyboard! While most kitchen carcass cabinets are standard there are many jobs that call for the kind of flexibility that Polyboard users take for granted! Easy create special cabinets such as: o Display cabinets, with timber frame or aluminium frame doors (and get a cutting list for the frame and glass) o Shadow line cabinets with cut-outs for rails, and adjustments for finger pulls. o Oven cabinets and Range hood cabinets with appropriate allowances for ducting. o Cabinets with external voids or cabinets that fit around building columns easy with just a few clicks o Curved open shelving o Overhead hamper cabinets with bi-fold or lift doors Automatically produce detail dimensioned part drawings showing the location of all required boring. If you have a CNC machining centre these parts can be sent directly to your machine in standard formats for Weeke, Homag, Biesse, SCM as well as  standard 3D DXF drawings.
←Slideout Rangehood cabinet Rounded end overhead wall shelves, In Polyboard its easy to create open shelves with curves: →
Free Demo version Custom Kitchens
We also have a kitchen cabinet library available with some example kitchens designed. These are freely available, so you are welcome to use and adapt them to suit your needs. We can get you going very quickly using these but as no one builds cabinets the same as everyone else, we recommend you take the Polyboard advantage and set your own library. And of course remember we are always here to help!
↓ Kitchen cabinet library available
↑  Easy setup which part will overlap other parts e.g. if back is external, internal or even half / half  
Overhead wall cabinet with bi-folding doors and stay
Cabinet with void for corners with columns or pipes. In Polyboard its only a couple of clicks to create this fully parametrically, just specify the panels and the void dimensions.
Shadow-line cabients are easy in Polyboard, Position the cut-out for rails on your panels fully parametrically in any shape, even finger- pulls on panel fronts can be specified.
Display cabinets with  glass doors, easy specify mitred joints for aluminium or router machining for MDF frames.

Kitchen cabinet types:

Polyboard offers many standard cabinet shapes that will suit your day to day manufacturing needs, these include the: o The humble square box cabinet o The L shape corner cabinet, o 45 degree angle corner cabinet o Free shape cabinets with multiple panels at any angle. All these cabinets are fully parametric, which means that you can design them to your hearts content, and then at a later date; duplicate and modify the overall cabinet dimensions to use cabinets of the same style and shape but with different dimensions.
Create new cabinets using 3 quick start predefined shapes or use the free shape option to create any shape cabinet; like this half- hexagonal kitchen bench island
Polyboard comes with three pre-deigned quick start cabinet shapes, box, L-shape, and Angle cabinets

Benchtops, End panels, & kick frames

Ancillary parts to a kitchen are all possible to model and create in Polyboard. Bench tops, splash-backs, end panels, filler pieces, kick- boards \ frames, are all easily designed and shown in 3d and properly costed in your job. o Bench tops & splash-backs are easily made in Polyboard joints between sections can be designed including corner mason mitre joints. Bench tops can be modeled as a solid piece like a stone, or as a two part glued up panel comprising a particleboard substrate and a laminate on top. in either case all materials are costed separately by the square metre and total thickness is modeled in 3 Dimensions on screen. Of course as with any panel in Polyboard, bench top with machining such as mason mitres, can be exported to your cnc machine in your desired format.
In Polyboard cabinets can consist of whole cabinets or you can delete parts to create subsections of cabinets as a result designing end panels and filler pieces are easy as designing a cabinet with a single panel or two! o kick frames can be a single panel if you use plastic support legs or they can be a whole ladder frame and like laminate bench- tops if you glue laminate to the front panel it will be fully costed & displayed. If you normally cut your kickers out of offcuts, The material can be set to be different from the carcass so that you can receive a separate cultist for the kickers
← In Polyboard you are free to place end panels wherever needed. Kick frames or panels are easily designed →
Use Polyboard to create your bench tops and splash backs. Polyboard automatically generates dimensioned drawings and CNC files for machining
The Partial views window lets the user set where they want to ‘cut’ the room drawing in order to get clear partial views of sections →
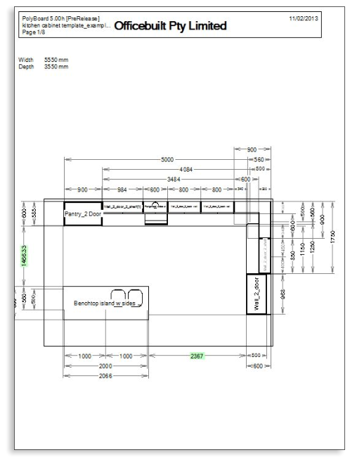
Over all Plan view, notice dimension in in black are automatically generated by Polyboard. Green highlighted dimensions are extra ones added by the user.
Shop drawing of back wall, Please click to see large view
3D Shop drawing of Island bench views can be set to any orientation including 3D
3D Shop drawing of Right hand wall, Please click to see large view
First page of the kitchen cutting list
Detailed costing of all components of your kitchen job
Cabinet list / Loading list of the cabinets contained in your job
Shop drawings & renderings : Polyboard produces nice 3d rendered graphics that will demonstrate your designs to your customers.,with full rotation and zoom controls. In addition to rendered views, manufacturing workshop drawing are also able to be generated fully dimensioned, either part or unit by unit or as a whole complete kitchen. Polyboard also gives you the option of adding in your own dimensions to show special features of your designs i.e. space between cupboard and doorway or space between a cupboard and a wall to show that there is adequate space to open doors. Parts can be made semi-transparent to show cabinet internals and there is also a feature to animate the opening and sliding of doors and drawers. 
~ Focus on Industry ~
Reports and Detailed Job Costing: While some software packages have reports and job costings calculations as optional extras Polyboard comes with all the manufacturing reports you need included as standard, in all version levels. The detailed costing reports includes and itemises all the components and materials that go into your kitchen job. This report will help you with both understanding the cost of your job so you are able to quote properly, but it will also assist you in the ordering of components from suppliers for each job. o All panel materials have a cost / square metre and thereby Polyboard calculates total cost for each material used including surface laminates like those applied to kick- boards. o Edgebanding is costed by the metre and total edgebanding used for each type of tape is calculated and added up. o All hardware fittings are totalled and costed separately giving you accurate both knowledge of what items are in each job, and the total cost. all items are included; adjustable shelf support pins, hinges, drawer runners / sides, and each and every screw! A detailed cutting list is available in all levels even if you use the post processor to export your parts to your Nesting CNC machine for cutting you will still be able to print a cultist that is broken down to individual cabinets. which would be uses to cut parts that are not cut on the cnc like kick boards. Polyboard Also will generate a report that will itemise all the cabinets used in a job. that would be useful to be use as a truck loading list or even for general quoting purposes.